Egyszintes családi ház – tágasabb nappalival, rugalmas térhasználattal
A 3B típusterv egy modern, egyszintes családi ház, amely a 3A változathoz hasonló
alapelrendezésre épül, ugyanakkor a közösségi terek nagyobb hangsúlyt kapnak.
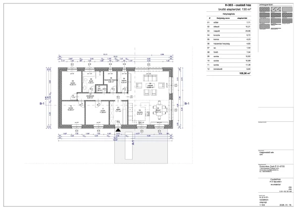
Az épület 108,96 m² nettó és 130 m² bruttó alapterülettel rendelkezik,
kialakítása pedig azok számára ideális, akik a tágasabb nappalit részesítik előnyben.
Az egyszintes kialakítás egyszerű, kényelmes közlekedést biztosít.
A lakótér központi eleme a jelentősen megnövelt nappali, amely világos,
jól bútorozható teret kínál a mindennapi élethez, családi együttlétekhez és vendégfogadáshoz.
A nappali közvetlen kapcsolatban áll az étkezővel és a konyhával, így egy egységes,
jól átlátható közösségi zóna jön létre, amely hatékonyan támogatja a mindennapi használatot.
A 3A és 3B típus közötti különbség
A 3B típusterv legfontosabb eltérése a 3A változathoz képest a nappali mérete és hangsúlya.
Míg a 3A esetében a nappali kompaktabb kialakítású, addig a 3B változatban a nappali alapterülete
jelentősen megnövelt, ami szellősebb térérzetet és nagyobb berendezési szabadságot biztosít.
Ez a megoldás ideális azok számára, akik a közösségi térben töltik a legtöbb időt,
és fontos számukra a tágas, hangsúlyos nappali.
Funkcionális alaprajz, jól elkülönülő terek
A 3B alaprajza továbbra is jól elkülöníti a közösségi és a privát funkciókat.
A házban három különálló szoba kapott helyet, amelyek hálószobaként,
gyerekszobaként vagy dolgozószobaként is jól használhatók.
A fürdőszoba és a külön WC kényelmes megoldást nyújt a mindennapok során.
A kamra és a háztartási helyiség segíti a praktikus tárolást és
a háztartási funkciók elkülönítését, míg a közlekedő logikusan fűzi fel
a ház egyes helyiségeit.
Helyiségek és alapterületeik
- Előtér – 7,71 m²
- Étkező – 10,21 m²
- Nappali – 23,66 m²
- Konyha – 9,72 m²
- Kamra – 4,23 m²
- Háztartási helyiség – 4,80 m²
- WC – 1,50 m²
- Fürdő – 7,54 m²
- Szoba – 10,80 m²
- Szoba – 10,89 m²
- Szoba – 11,06 m²
- Közlekedő – 6,84 m²
Miért jó választás a 3B típusterv?
- Egyszintes, jól átgondolt családi ház
- A 3A változathoz képest nagyobb, hangsúlyosabb nappali
- Három különálló, jól használható szoba
- Jól szervezett közösségi tér (nappali–étkező–konyha)
- Praktikus tárolóhelyiségek
- Ideális azoknak, akik a tágas nappalit részesítik előnyben
A 3B családi ház típusterv kiváló választás mindazok számára, akik a 3A
kompaktabb megoldásánál nagyobb közösségi térre vágynak, miközben megőrzik
az egyszintes kialakítás kényelmét és a jól bevált alaprajzi logikát.
Tájékoztató jellegű információk
A weboldalon bemutatott látványtervek a tervezett épület megjelenését és hangulatát szemléltetik. Ezeken olyan elemek is megjelenhetnek – például pergola, kerítés, autóbeálló, medence, betonfödém vagy különféle külső burkolatok –, amelyek nem részei az alap kivitelezési csomagnak, és csak külön egyeztetés vagy felár mellett valósíthatók meg.
A kivitelezés minden esetben a megrendelő által jóváhagyott építészeti és statikai tervek alapján történik. A látványtervek nem minősülnek kiviteli tervnek, kizárólag tájékoztató jellegűek.
A házhoz vagy a telekhez kapcsolódó kiegészítő elemek – így például teraszok, járdák, vízelvezetési és esővíz-kezelési megoldások, autóbeállók vagy kerítések – nem képezik automatikusan a standard kivitelezés részét. Ezek megvalósítása minden esetben külön megállapodás tárgyát képezi.
Amennyiben egy adott elem vagy megoldás nem szerepel kifejezetten a kivitelezési szerződésben, úgy az nem része a vállalt teljesítésnek.
A kivitelezési lehetőségek és egyes kiegészítők elérhetősége régiónként, valamint az aktuális kapacitástól függően eltérhet, ezért azok műszaki tartalma és ára időszakonként változhat.









































