Egyszintes családi ház – átgondolt térszervezés, háromállásos garázzsal
A H-04C típusterv egy modern, egyszintes családi ház, amely a jól elkülönített
funkcionális zónákat és a kényelmes, nagyvonalú tereket helyezi előtérbe.
Az épület 217,51 m² nettó és 243,5 m² bruttó alapterülettel rendelkezik,
amely magában foglalja a lakóteret és a két egységre bontott, összesen három gépjármű
elhelyezésére alkalmas garázst.
Az egyszintes kialakítás kényelmes, akadálymentes közlekedést biztosít.
Az alaprajz világosan elkülöníti a közösségi és a privát tereket, így a ház
hosszú távon is jól működő életteret kínál családok számára.
Tágas közösségi tér, átgondolt kapcsolatokkal
A ház központi eleme a nappali–étkező–konyha együttese,
amely egymáshoz kapcsolódó, mégis jól strukturált közösségi térként funkcionál.
- Nappali: 27,52 m²
- Étkező: 10,67 m²
- Konyha: 10,14 m²
A nagy üvegfelületek közvetlen kertkapcsolatot és megfelelő természetes fényt biztosítanak.
A konyhához külön kamra kapcsolódik, amely praktikus tárolási megoldást jelent.
Funkcionális alaprajz, jól elkülönített zónák
A H-04C típusterv határozottan szétválasztja a közösségi és a privát tereket.
A háló- és dolgozószobák a közlekedőről nyílnak, elkülönítve a nappali forgalmától.
- Szoba: 14,40 m²
- Gardrób: 13,14 m²
- Dolgozó: 9,10 m²
- Vendégszoba: 9,10 m²
A házban három fürdőhelyiség található, valamint külön WC,
ami nagyobb család esetén is megfelelő komfortot biztosít.
A jól szervezett belső működést támogatja a tágas közlekedő és az önálló
háztartási helyiség.
Háromállásos garázs
A garázs két egységből áll:
- Garázs 2: 55,76 m²
- Garázs 1: 18,60 m²
Az összesen több mint 74 m²-es garázstér három gépjármű elhelyezésére alkalmas,
és közvetlen kapcsolatban áll a lakótérrel, ami a mindennapi használat során
különösen kényelmes megoldást jelent.
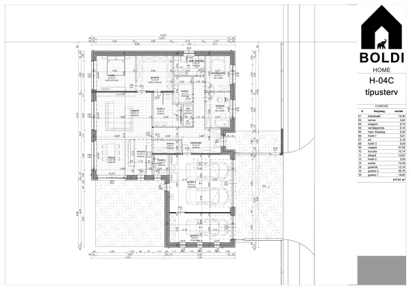
Helyiségek és alapterületeik
- Közlekedő: 19,40 m²
- Kamra: 3,64 m²
- Dolgozó: 9,10 m²
- Vendégszoba: 9,10 m²
- Háztartási helyiség: 6,30 m²
- Fürdő 1: 5,21 m²
- WC: 2,19 m²
- Fürdő 3: 9,09 m²
- Nappali: 27,52 m²
- Konyha: 10,14 m²
- Étkező: 10,67 m²
- Fürdő 2: 3,25 m²
- Szoba: 14,40 m²
- Gardrób: 13,14 m²
- Garázs 2: 55,76 m²
- Garázs 1: 18,60 m²
Összes nettó alapterület: 217,51 m²
Összes bruttó alapterület: 243,5 m²
Miért jó választás a H-04C típusterv?
- Nagy alapterületű, egyszintes családi ház
- Jól elkülönített közösségi és privát zóna
- Három fürdőhelyiség + külön WC
- Önálló gardrób és háztartási helyiség
- Kamra a konyha mellett
- Háromállásos, közvetlen kapcsolatos garázs
- 243,5 m² bruttó alapterület
A H-04C típusterv olyan családok számára készült, akik tágas,
funkcionálisan átgondolt, hosszú távon is komfortos otthont keresnek,
ahol a térszervezés és a használhatóság egyensúlya meghatározó szempont.
Tájékoztató jellegű információk
A weboldalon bemutatott látványtervek a tervezett épület megjelenését és hangulatát szemléltetik. Ezeken olyan elemek is megjelenhetnek – például pergola, kerítés, autóbeálló, medence, betonfödém vagy különféle külső burkolatok –, amelyek nem részei az alap kivitelezési csomagnak, és csak külön egyeztetés vagy felár mellett valósíthatók meg.
A kivitelezés minden esetben a megrendelő által jóváhagyott építészeti és statikai tervek alapján történik. A látványtervek nem minősülnek kiviteli tervnek, kizárólag tájékoztató jellegűek.
A házhoz vagy a telekhez kapcsolódó kiegészítő elemek – így például teraszok, járdák, vízelvezetési és esővíz-kezelési megoldások, autóbeállók vagy kerítések – nem képezik automatikusan a standard kivitelezés részét. Ezek megvalósítása minden esetben külön megállapodás tárgyát képezi.
Amennyiben egy adott elem vagy megoldás nem szerepel kifejezetten a kivitelezési szerződésben, úgy az nem része a vállalt teljesítésnek.
A kivitelezési lehetőségek és egyes kiegészítők elérhetősége régiónként, valamint az aktuális kapacitástól függően eltérhet, ezért azok műszaki tartalma és ára időszakonként változhat.





























